Photos Amon nos Ôtes
Vezzani - Ldt Noce s/n
Situé à Vezzani, l’hébergement Amon nos Ôtes offre une vue sur le jardin. Il propose une piscine extérieure ouverte en saison et une connexion Wi-Fi gratuite. Cette maison de vacances comprend une piscine privée, un jardin et un parking privé gratuit.
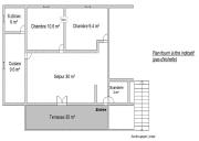
Cette maison de vacances possède une terrasse, 2 chambres, un salon et une cuisine bien équipée. Une télévision à écran plat est disponible.
Vous séjournerez à respectivement 45 km et 45 km de ces lieux d’intérêt : Lac de Melu et Lac de Goria. Laéroport le plus proche (Aéroport dAjaccio - Napoléon Bonaparte) est à 66 km.
Arrivée à partir de 15:00 et se termine à 11:00.
Les enterrements de vie de célibataire et autres fêtes de ce type sont interdits dans cet établissement.
Veuillez informer létablissement à lavance de lheure à laquelle vous prévoyez darriver. Vous pouvez indiquer cette information dans la rubrique « Demandes spéciales » lors de la réservation ou contacter directement létablissement. Ses coordonnées figurent sur votre confirmation de réservation.
Hébergement géré par un particulier
Maison 2 Chambres. This holiday home features a private pool. The holiday homes kitchen is available for cooking and storing food. Boasting a terrace with garden views, this holiday home also features a washing machine and a flat-screen TV. The unit has 4 beds.
Informations complémentaires sur l´offre fr - Vezzani - Amon nos Ôtes, les avis des vacanciers ainsi que les dates disponibles sont à retrouver sur le site notre associé.
Réserver
L´offre de notre partenaire: Booking.com BG.6810497









